野々市市高橋町 中古戸建

野々市市工大駅近くのインナーガレージ付リフォーム戸建!水回りは回遊動線へ変更し住みやすさも向上しています。周辺にコンビニや生活施設も多い好立地。

この物件について相談をする

Spec

物件概要

物件種別

中古戸建

所在地

野々市市高橋町3番35号

価 格

2,880万

築 年

1986年3月

土地面積

198.39㎡(60.01坪)

建物面積

160.49㎡(40.58坪)

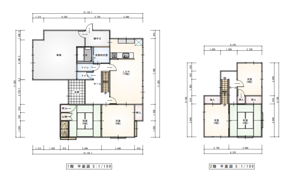
間取り

5LDK
1階:LDK16.0・洋室8.0・和室8.0・WC・洗面・浴室・サンルーム・車庫
2階:和室8.0・洋室6.0・6.0・

交 通

北陸鉄道石川線 野々市市工大前駅 徒歩1分

駐車場

3台可

備 考

指定仲介業者あり:株式会社Ruto 

業者様用

Reserve

内見予約

こちらは内見予約フォームです。必要事項をご入力の上、送信してください。折り返しご連絡いたします。

返信まで数日かかる場合もございます。あらかじめご了承ください。予約内容の送信だけでは予約は完了しません。電話もしくはメールで弊社から確認の連絡をいたしますので、そこで見学日時の確認が行われて初めて予約が成立します。弊社から連絡がなかった場合は、恐れ入りますが、直接お問い合わせください。予約成立後のキャンセル・内容を変更したい場合は、直接弊社までご連絡ください。

は必須項目となります。

※ 見学希望日はカレンダーから選択してください。(水曜定休)
※ 翌日以降でご指定ください。当日の場合はお電話ください。

第1見学希望日

第2見学希望日

お名前

フリガナ

電話番号

メールアドレス

ご住所

ご希望の連絡方法

ご希望の連絡時間

内 容


お電話・Faxからも
お申し込みいただけます

Page Top