河北郡津幡町字津幡ヌ 新築分譲

LDK21.5帖で広々開放的、水回りがまとまっており家事も楽々です!中津幡駅近く金沢方面へのアクセスも良好です。

この物件について相談をする

Spec

物件概要

物件種別

新築分譲

所在地

河北郡津幡町字津幡ヌ130番地8

価 格

3,415万円

築 年

2025年9月

土地面積

171.46㎡(51.86坪)

建物面積

104.10㎡(31.50坪)

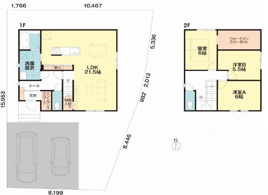
間取り

3LDK
1階:LDK21.5・洗面・浴室・WC・エントランスクローク
2階:洋室6.0+WIC・6.0・5.5・WC

交 通

中津幡駅 徒歩約3分

駐車場

3台可

備 考

ZEH仕様+MAMORY(制震ダンパー)搭載、エアコン2台付

Reserve

内見予約

こちらは内見予約フォームです。必要事項をご入力の上、送信してください。折り返しご連絡いたします。

返信まで数日かかる場合もございます。あらかじめご了承ください。予約内容の送信だけでは予約は完了しません。電話もしくはメールで弊社から確認の連絡をいたしますので、そこで見学日時の確認が行われて初めて予約が成立します。弊社から連絡がなかった場合は、恐れ入りますが、直接お問い合わせください。予約成立後のキャンセル・内容を変更したい場合は、直接弊社までご連絡ください。

は必須項目となります。

※ 見学希望日はカレンダーから選択してください。(水曜定休)
※ 翌日以降でご指定ください。当日の場合はお電話ください。

第1見学希望日

第2見学希望日

お名前

フリガナ

電話番号

メールアドレス

ご住所

ご希望の連絡方法

ご希望の連絡時間

内 容


お電話・Faxからも
お申し込みいただけます

Page Top