河北郡津幡町字津幡ヌ 新築分譲 平屋

ワンフロアで全て完結の人気の平屋建!気になる断熱性・耐震性も◎新規造成地内で周りの雰囲気も良いです。

この物件について相談をする

Spec

物件概要

物件種別

新築分譲

所在地

河北郡津幡町字津幡ヌ130番地7

価 格

3,279万円

築 年

2025年5月

土地面積

171.46㎡(51.86坪)

建物面積

78.49㎡(23.75坪)

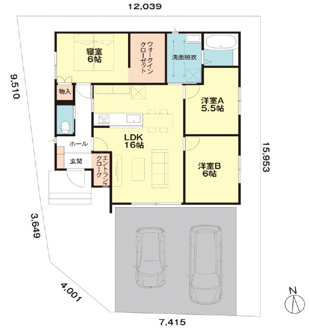
間取り

3LDK
1階:LDK16.0・洋室6.0+WIC・洋室6.0・洋室5.5・洗面・浴室・WC・エントランスクローク

交 通

中津幡駅 徒歩約3分

駐車場

4台可

備 考

平屋建、ZEH仕様+MAMORY(制震ダンパー)搭載・エアコン2台付

業者様用

Reserve

内見予約

こちらは内見予約フォームです。必要事項をご入力の上、送信してください。折り返しご連絡いたします。

返信まで数日かかる場合もございます。あらかじめご了承ください。予約内容の送信だけでは予約は完了しません。電話もしくはメールで弊社から確認の連絡をいたしますので、そこで見学日時の確認が行われて初めて予約が成立します。弊社から連絡がなかった場合は、恐れ入りますが、直接お問い合わせください。予約成立後のキャンセル・内容を変更したい場合は、直接弊社までご連絡ください。

は必須項目となります。

※ 見学希望日はカレンダーから選択してください。(水曜定休)
※ 翌日以降でご指定ください。当日の場合はお電話ください。

第1見学希望日

第2見学希望日

お名前

フリガナ

電話番号

メールアドレス

ご住所

ご希望の連絡方法

ご希望の連絡時間

内 容


お電話・Faxからも
お申し込みいただけます

Page Top